Appartamento
81100, Italy
- 24
-
4 Vani
-
2 Bagni
-
135 mq. Interni
-
50 mq. Esterni
-
3 Camere da letto
Descrizione
La GreenHouse propone la vendita in ESCLUSIVA di un appartamento a Caserta in Zona Petrarelle alla Via Laviano.
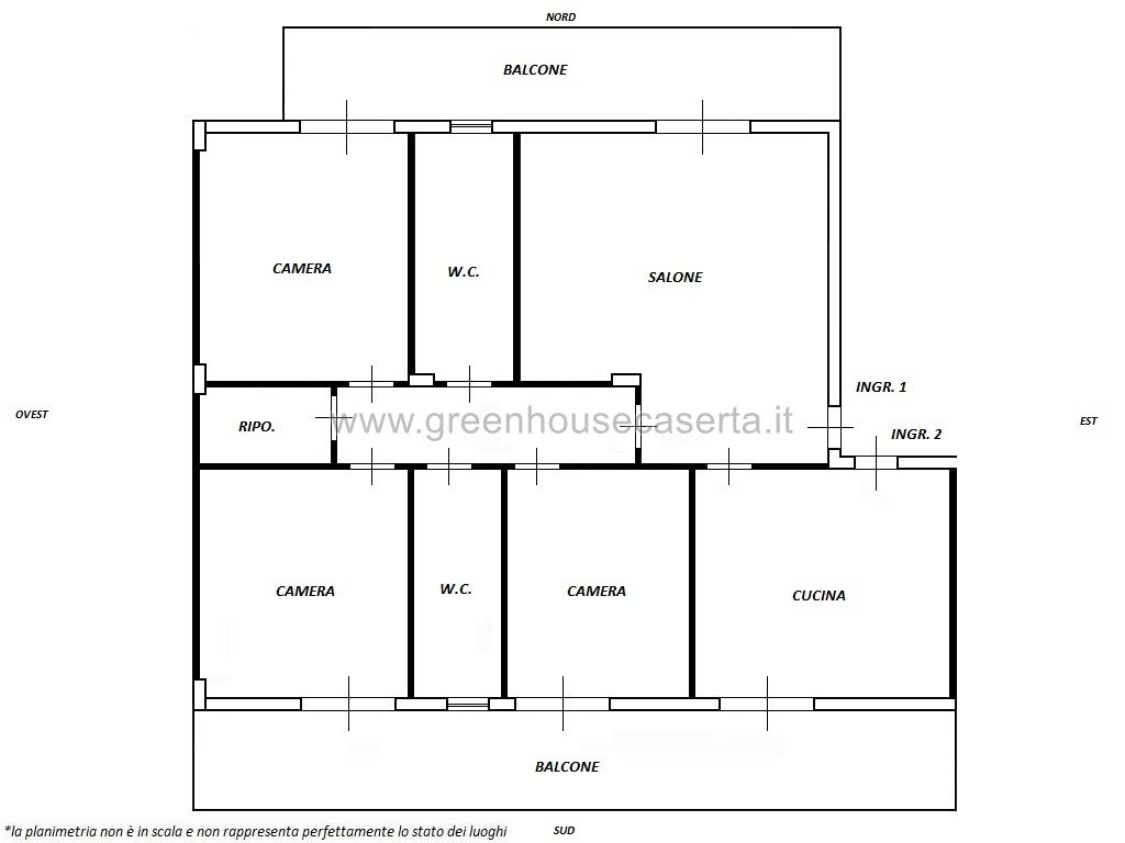
L’immobile è ubicato all’interno del “Parco Sica” ed internamente è così composto:
doppio ingresso, ampio salone, cucina abitabile, disimpegno, tre camere da letto, due bagni, ripostiglio e due ampie balconate.
Con box auto di 25 mq di proprietà e posto auto condominiale.
Totale MQ interni CALPESTABILI: ca. 135 MQ – COMMERCIALI: ca. 150 MQ.
Totale MQ esterni CALPESTABILI: ca. 50 MQ.
*Le metrature CALPESTABILI indicate sono state rilevate sul posto con METROLASER.

N.B.: Con l’espressione “superficie calpestabile” (o “utile”) ci si riferisce a ciò che in un immobile può essere calpestato: esclusi i muri perimetrali ed i muri interni.
La superficie commerciale invece è sempre superiore a quella calpestabile: generalmente il 10-15% in quanto è la somma degli spazi dell’intero immobile, muri compresi.
Esposizione: SUD/NORD.
Classe energetica da definire.
- Guarda il Video!







